Appartementen en kantoorruimte

Appartementen en kantoorruimte
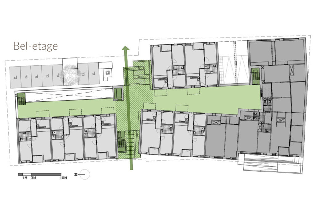
De transformatie van het gebied, waar een kantoorpand en een bibliotheek plaatsmaken voor een nieuw woongebouw met 36 appartementen en kantoorruimte, vraagt om een zorgvuldig participatieproces. Gemeente Wijk bij Duurstede, (voormalig) woningbouwcorporatie Viveste en Studio Westgeest hebben deze opgave gezamenlijk opgepakt. In gesprekken met omwonenden kwamen onderwerpen als bouwvolume, lichtinval en zichtlijnen, parkeren, verkeersveiligheid en verkeersroutering aan bod. Dit overleg heeft geleid tot het splitsen van het totale bouwvolume, waardoor de bestaande looproute behouden kon blijven. Naast enkele bovengrondse plekken voor elektrische auto’s is er ondergronds voldoende parkeermogelijkheid. De woningen zijn rug aan rug gesitueerd, met terrassen die (verspringend) tegenover elkaar liggen. Hierdoor is een corridor ontstaan die ontmoeting tussen bewoners stimuleert. Diverse openingen in het ontwerp zorgen voor natuurlijke lichtinval in de woningen en bieden doorkijkjes voor zowel bewoners als omwonenden.
Studio Westgeest kijkt met voldoening terug op een intensief proces, waarin de betrokkenheid van de buurt heeft bijgedragen aan een zorgvuldige en waardevolle inpassing van het woonblok in de bestaande omgeving. Het resultaat sluit aan bij de woonwensen van deze tijd en draagt bij aan de sociale cohesie.